HL型碎礦石環鏈離心斗式提升機生產廠家
文章作者:奧創機械發布時間:2019/4/10 10:36:49瀏覽次數:
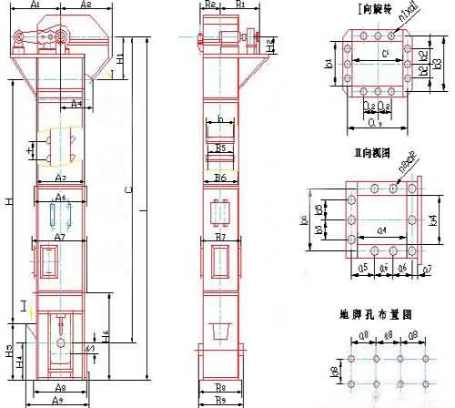
環鏈離心斗式提升機-HL型碎礦石環鏈離心斗式提升機生產廠家-外形圖特點鏈條結構 13353676726
HL型環鏈離心斗式提升機適用于垂直輸送磨琢性較大的粉狀、粒狀、及小塊狀物料,如糧食、煤、水泥、碎礦石等,輸送高度高40m,其特點為,結構簡單,運行平穩,掏取式裝料,混合式或重力卸料,輪緣采用組合鏈輪,更換方便,鏈輪輪緣經特殊處理壽命長,下部如采用重力自動張緊裝置,能保持恒定的張力,避免打滑或脫鏈,同時在料斗遇阻時,有一定的容讓性能夠有效地保護運動部件,物料溫度不超過250℃。

HL型環鏈離心斗式提升機主要特點:
1、運行平穩、輸送效率高;
2、料斗形式多,應優先選用;
3、適應性強、安裝維修方便、壽命長;
4、整機體積小、轉速高、確保快速均勻輸送。
HL型環鏈離心斗式提升機工作原理:
HL型環鏈離心斗式提升機,由運動部分(料斗與牽引鏈條)、帶有傳動鏈輪的上部區段、帶有拉緊輪的下部區段、中間機殼、驅動裝置、逆止制動裝置等組成(見環鏈離心斗式提升機外形圖)。本提升機的料斗為間斷式布置,利用“掏取法”進行裝載,“離心投料法”卸料。本提升機的牽引機構是兩根環形鏈條.我公司生產的HL型環鏈離心斗式提升機,由運動部分(料斗與牽引鏈條)、帶有傳動鏈輪的上部區段、帶有拉緊輪的下部區段、中間機殼、驅動裝置、逆止制動裝置等組成。本提升機的料斗為間斷式布置,利用“掏取法”進行裝載,“離心投料法”卸料。本提升機的牽引機構是兩根環形鏈條。

HL型環鏈離心斗式提升機制法和裝法:
1、按料斗形狀分為兩種:制法--帶有深園底形料斗;制法--帶有淺園底形料斗;
2、按上部區段卸料口的形式分為兩種:制法--帶有傾斜法蘭的卸料口; 制法--帶有水平法蘭的卸料口;
3、按下部區段進料口的形式分為兩種:制法--進料口的斜面與水平面成45度角; 制法--進料口的斜面與水平面成60度角;
4、按中間機殼側面檢視門的位置分為四種:制法--中間機殼側面帶有下端左檢視門;制法--中間機殼側面帶有下端右檢視門; 制法--中間機殼側面帶有上端左檢視門;制法--中間機殼側面帶有上端右檢視門;
5、按中間機殼端面檢視門的位置分為兩種:制法--中間機殼端面帶有下端檢視門;制法--中間機殼端面帶有上端檢視門;
6、按傳動裝置對提升機的相對位置分為兩種:左裝--傳動裝置在左側;右裝--傳動裝置在右側
HL系列環鏈離心式斗式提升機外形圖:

斗式提升機的型號選用須知:
作為常用的提升設備,斗式提升機的選用受很多方面因素的制約,選錯型號會給使用方帶來不盡的麻煩。
一般決定斗式提升機選型取決于以下幾個要素:
1.物料的形態:物料是粉狀還是顆粒狀還是小塊狀。
2.物料的物理性質:物料有沒有吸附性或者粘稠度,是否含水。
3.物料的比重:一般斗式提升機參數都是針對堆積比重在1.6以下的物料設計和計算的,太大的物料比重需要進行牽引力和傳動部分抗拉強度的計算。
4.單位時間內的輸送量。
一般來說,物料的形態直接決定物料的卸料方式,常用規律為粉狀物料采用離心拋射卸料、塊狀物料采用重力卸料,而卸料方式的不同決定斗式提升機采用的料斗形式的不同,離心拋射卸料多采用淺斗和弧形斗,而重力卸料需采用深斗。斗式提升機所采用料斗的類型不同則單位時間內提升的物料輸送量是不一樣的。斗式提升機終的輸送量是取決于料斗形式、斗速、物料比重、物料性質、料斗數量的一個綜合參數。選型過程如下:物料比重→傳動方式(斗提型號)→物料性質→卸料方式→料斗形式→該系列斗式提升機的提升量→確定機型。
河南奧創機械-機械設備生產廠家-提供價格方案流程安裝,主營制造各類振動篩分機,輸送機,提升機,給料機,除塵器等,整機質保
[奧創機械]-微信手機同號13353676726


